



















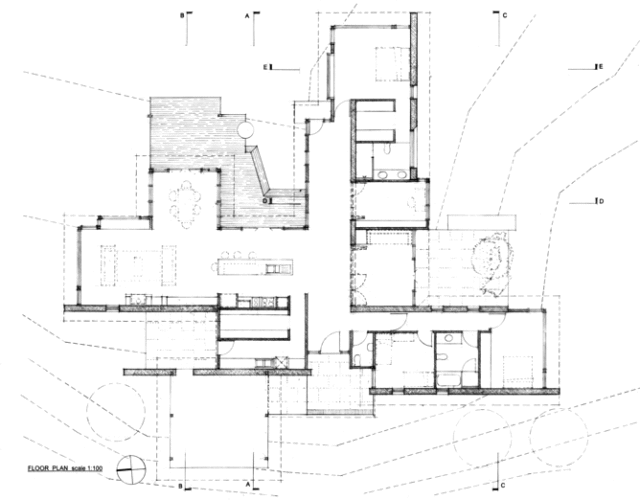
The house is located near the township of Woodend, on a gentle east facing slope overlooking the Slatey Creek valley, with longer views to Mount Macedon. The site provides more intimate views to the south and south east towards stands of remnant vegetation. The project brief is for a family home that harnesses the site’s potential for minimal environmental impact. The floor plan developed around the requirement for sheltered outdoor areas in both summer and winter. The main living areas including retreat, study and main bedroom wrap in an ‘L’ around a sheltered outdoor area with both northerly aspect and views to the east. The bedroom wing spins off the entry to create a sheltered southerly terrace. The main living areas have long views through the retreat to the south terrace and beyond. The house utilizes insulated rammed earth and concrete slab construction to create internalised thermal mass in order to moderate the daily swings in temperature. Solar control is achieved using eaves and timber batten sun screens. The materials used in this house are expressed in their raw state; rammed earth, polished concrete floors, timber and zincalume steel make up the pallet.